KIEM
55 – 61 Route d’Arlon
Strassen

Heritage by les jardins de luxembourg

Kiem
Horizon (Lot 1) Origin (Lot 2) Signature (Lot 3) Lot 4 Lot 5 Lot 6 Lot 7 Lot 8 Lot 9 Lot 10 Lot 11 Lot 12
Fermer

Horizon (Lot 1)

Le bâtiment « Horizon » constitue la pièce maîtresse du projet KIEM, avec une superficie totale de 5 145 m². Il proposera des logements, des surfaces commerciales et des bureaux, assurant une intégration particulièrement harmonieuse entre les espaces résidentiels et les surfaces dédiées aux activités économiques.

Il sera composé de :

  • 32 appartements pour une superficie totale de 4 053,43 m²
  • 1 500 m² de bureaux
  • 500 m² de surfaces commerciales
  • 117 emplacements de parking intérieurs + 7 extérieurs
  • 35 caves
32
appartements
Délivré à partir de
2028

Origin (Lot 2)

Le bâtiment « Origin », petite résidence du projet KIEM, d’une superficie totale de 885,80 m², s’intègre parfaitement dans l’ensemble du projet tout en offrant les mêmes standards élevés en matière de conception et de confort.

Il sera composé de :

  • 8 appartements
  • 15 emplacements de parking
  • 8 caves
8
appartements
prix
vendu€
Délivré à partir de
2028

Signature (Lot 3)

Ce bâtiment « Signature » de 1 500 m² alliera performances énergétiques élevées, optimisation des surfaces, design contemporain, espaces communs soignés et intégration paysagère harmonieuse.

Il sera composé de :

  • 13 appartements
  • 13 emplacements de parking intérieurs en sous-sol + 7 extérieurs
  • 13 caves privatives
13
appartements
Délivré à partir de
2028

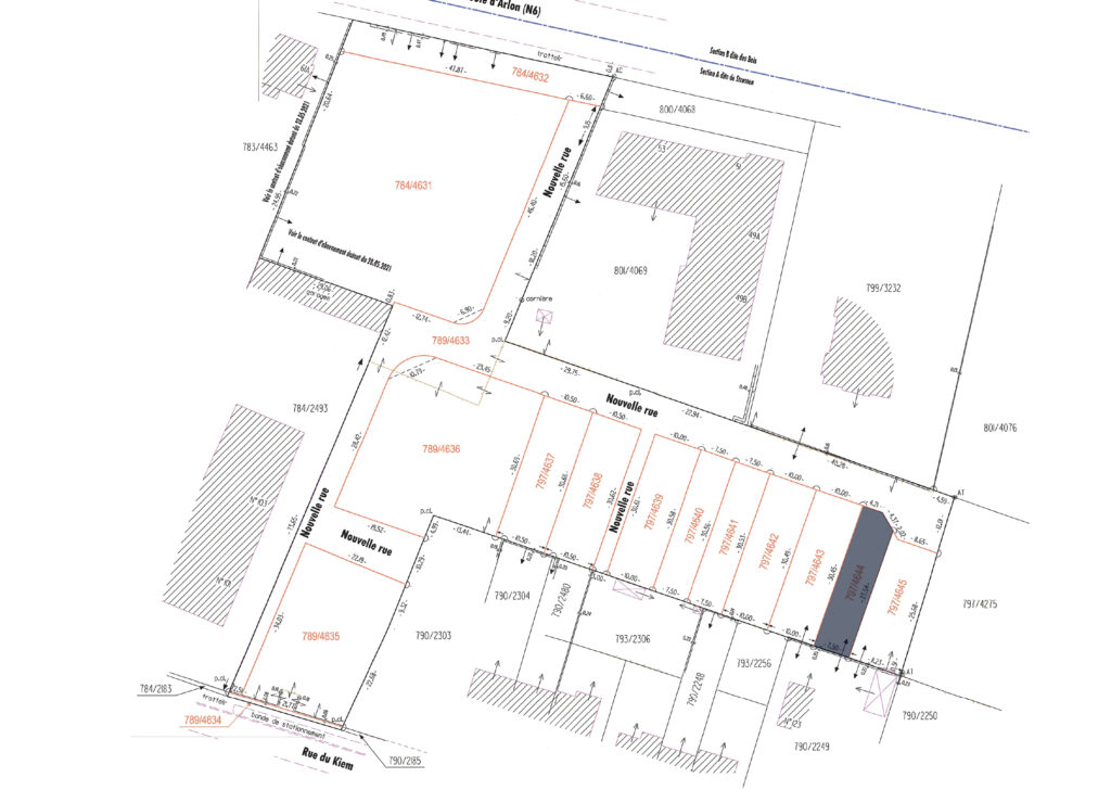
Lot 4

Terrain à bâtir (797/4637) viabilisé, d’une superficie de 3,22 ares, situé dans le futur quartier résidentiel « KIEM » à Strassen. Ce terrain, libre de tout contrat de construction, bénéficie d’un emplacement idéal à proximité de toutes les commodités.

Disponibilité à convenir.

Possibilité de réalisation :

  • Villa contemporaine d’environ 245 m² bruts habitables
  • Sous-sol de 105 m², avec possibilité de garage pour 2 voitures
  • Rez-de-chaussée + 2 étages + sous-sol de 105 m² = surface constructible totale de 245 + 105 = 350 m² bruts
  • Deuxième étage en retrait, ouvrant sur une terrasse panoramique de 21 m²
  • Hauteurs sous plafond de 3 m à 3,50 m
prix
1.046.500€
terrain
3.22 ares
constructible
350 m²

Lot 5

Terrain à bâtir (797/4638) viabilisé, d’une superficie de 3,22 ares, situé dans le futur quartier résidentiel « KIEM » à Strassen. Ce terrain, libre de tout contrat de construction, bénéficie d’un emplacement idéal à proximité de toutes les commodités.
Disponibilité à convenir.

Possibility of development:

  • Villa contemporaine d’environ 245 m² bruts habitables
  • Sous-sol de 105 m², avec possibilité de garage pour 2 voitures
  • Rez-de-chaussée + 2 étages + sous-sol de 105 m² = surface constructible totale de 245 + 105 = 350 m² bruts
  • Deuxième étage en retrait, ouvrant sur une terrasse panoramique de 21 m²
  • Hauteurs sous plafond de 3 m à 3,50 m
prix
1.046.500€
terrain
3.22 ares
constructible
350 m²

Lot 6

Terrain à bâtir (797/4639) viabilisé, d’une superficie de 3,06 ares, situé dans le futur quartier résidentiel « KIEM » à Strassen. Ce terrain, libre de tout contrat de construction, bénéficie d’un emplacement idéal à proximité de toutes les commodités.
Disponibilité à convenir.

Possibilité de réalisation :

  • Villa contemporaine d’environ 245 m² bruts habitables
  • Sous-sol de 105 m², avec possibilité de garage pour 2 voitures
  • Rez-de-chaussée + 2 étages + sous-sol de 105 m² = surface constructible totale de 245 + 105 = 350 m² bruts
  • Deuxième étage en retrait, ouvrant sur une terrasse panoramique de 21 m²
  • Hauteurs sous plafond de 3 m à 3,50 m
prix
994.500€
terrain
3.06 ares
constructible
350 m²

Lot 7

Terrain à bâtir (797/4640) viabilisé, d’une superficie de 2,29 ares, situé dans le futur quartier résidentiel « KIEM » à Strassen. Ce terrain, libre de tout contrat de construction, bénéficie d’un emplacement idéal à proximité de toutes les commodités.
Disponibilité à convenir.

Possibilité de réalisation :

  • Villa contemporaine d’environ 220 m² bruts habitables
  • Sous-sol de 105 m², avec possibilité de garage pour 2 voitures
  • Rez-de-chaussée + 2 étages + sous-sol de 105 m² = surface constructible totale de 220 + 105 = 325 m² bruts
  • Deuxième étage en retrait, ouvrant sur une terrasse panoramique de 21 m²
  • Hauteurs sous plafond de 3 m à 3,50 m
prix
744.250€
terrain
2.29 ares
constructible
325 m²

Lot 8

Terrain à bâtir (797/4641) viabilisé, d’une superficie de 2,29 ares, situé dans le futur quartier résidentiel « KIEM » à Strassen. Ce terrain, libre de tout contrat de construction, bénéficie d’un emplacement idéal à proximité de toutes les commodités.
Disponibilité à convenir.

Possibilité de réalisation :

  • Villa contemporaine d’environ 220 m² bruts habitables
  • Sous-sol de 105 m², avec possibilité de garage pour 2 voitures
  • Rez-de-chaussée + 2 étages + sous-sol de 105 m² = surface constructible totale de 220 + 105 = 325 m² bruts
  • Deuxième étage en retrait, ouvrant sur une terrasse panoramique de 21 m²
  • Hauteurs sous plafond de 3 m à 3,50 m
prix
744.250€
terrain
2.29 ares
constructible
325 m²

Lot 9

Terrain à bâtir (797/4642) viabilisé, d’une superficie de 3,05 ares, situé dans le futur quartier résidentiel « KIEM » à Strassen. Ce terrain, libre de tout contrat de construction, bénéficie d’un emplacement idéal à proximité de toutes les commodités.
Disponibilité à convenir.

Possibilité de réalisation :

  • Villa contemporaine d’environ 245 m² bruts habitables
  • Sous-sol de 105 m², avec possibilité de garage pour 2 voitures
  • Rez-de-chaussée + 2 étages + sous-sol de 105 m² = surface constructible totale de 245 + 105 = 350 m² bruts
  • Deuxième étage en retrait, ouvrant sur une terrasse panoramique de 21 m²
  • Hauteurs sous plafond de 3 m à 3,50 m
prix
991.250€
terrain
3.05 ares
constructible
350 m²

Lot 10

Terrain à bâtir (797/4643) viabilisé, d’une superficie de 3,05 ares, situé dans le futur quartier résidentiel « KIEM » à Strassen. Ce terrain, libre de tout contrat de construction, bénéficie d’un emplacement idéal à proximité de toutes les commodités.

Possibilité de réalisation :

  • Villa contemporaine d’environ 245 m² bruts habitables
  • Sous-sol de 105 m², avec possibilité de garage pour 2 voitures
  • Rez-de-chaussée + 2 étages + sous-sol de 105 m² = surface constructible totale de 245 + 105 = 350 m² bruts
  • Deuxième étage en retrait, ouvrant sur une terrasse panoramique de 21 m²
  • Hauteurs sous plafond de 3 m à 3,50 m
prix
991.250€
terrain
3.05 ares
constructible
350 m²

Lot 11

Terrain à bâtir (797/4644) viabilisé, d’une superficie de 2,23 ares, situé dans le futur quartier résidentiel « KIEM » à Strassen. Ce terrain, libre de tout contrat de construction, bénéficie d’un emplacement idéal à proximité de toutes les commodités.
Disponibilité à convenir.

Possibilité de réalisation :

  • Villa contemporaine d’environ 220 m² bruts habitables
  • Sous-sol de 105 m², avec possibilité de garage pour 2 voitures
  • Rez-de-chaussée + 2 étages + sous-sol de 105 m² = surface constructible totale de 220 + 105 = 325 m² bruts
  • Deuxième étage en retrait, ouvrant sur une terrasse panoramique de 21 m²
  • Hauteurs sous plafond de 3 m à 3,50 m
prix
724.750€
terrain
2.23 ares
constructible
325 m²

Lot 12

Terrain à bâtir (797/4645) viabilisé, d’une superficie de 2,81 ares, situé dans le futur quartier résidentiel « KIEM » à Strassen. Ce terrain, libre de tout contrat de construction, bénéficie d’un emplacement idéal à proximité de toutes les commodités.

prix
Vendu
terrain
2.81 ares

Découvrez nos biens immobiliers disponibles

  • 797/4645

    Terrain constructible

    vendu
    2 ares 81 ca
  • 797/4644

    Terrain constructible

    724 750
    2 ares 23 ca 325 m²
  • 797/4643

    Terrain constructible

    991 250
    3 ares 05 ca 350 m²
  • 797/4642

    Terrain constructible

    991 250
    3 ares 05 ca 350 m²
  • 797/4641

    Terrain constructible

    744 250
    2 ares 29 ca 325 m²
  • 797/4640

    Terrain constructible

    744 500
    2 ares 29 ca 325 m²
  • 797/4639

    Terrain constructible

    994 500
    3 a 06 ca 350 m²
  • 797/4638

    Terrain constructible

    1 046 500
    3 a 22 ca 350 m²
  • 797/4637

    Terrain constructible

    1 046 500
    3 a 22 ca 350 m²

Un projet de haute qualité, avec des finitions de luxe, signature emblématique de « Les Jardins de Luxembourg ».

Performance énergétique et thermique

  • Certificat énergétique : classe AAA
  • Isolation thermique
  • Triple vitrage
  • Amélioration de l’étanchéité à l’air
  • Isolation acoustique
  • Chaudière à gaz à condensation

Installations techniques et confort

  • Chauffage au sol
  • Système de ventilation double flux individuel
  • Stores à lamelles motorisés
  • Système domotique
  • Câblage TV et satellite
  • Équipements sanitaires haut de gamme

Matériaux et construction

  • Façades entièrement en pierre naturelle
  • Châssis en aluminium
  • Portes sécurisées
  • Toitures plates
  • Garde-corps en verre teinté
  • Protections solaires

Espaces extérieurs et parties communes

  • Aménagements haut de gamme des espaces communs
  • Ascenseurs vitrés
  • Éclairage extérieur
  • Aménagements paysagers signés par un paysagiste de renom
  • Panneaux solaires (eau chaude sanitaire)
  • Terrasses en bois ou en pierre
Mobilier de salle de bains nouvelle génération

Là où le design rencontre le confort.

Heritage associe une architecture de qualité et des finitions raffinées pour concevoir des espaces de vie où élégance, innovation et bien-être se rencontrent au quotidien.

Des finitions intérieures d’exception, où chaque détail reflète un haut niveau d’exigence et un sens du raffinement durable.

À quelques minutes de Luxembourg-Ville, Strassen séduit par son confort résidentiel, son dynamisme et son engagement pour un mode de vie durable.

La commune propose un cadre de vie pratique, avec tout à proximité — transports en commun, équipements sportifs, espaces verts et services du quotidien — idéal pour concilier tranquillité et accessibilité.

Une commune dynamique et accueillante alliant tranquillité, praticité et accès facile à Luxembourg-Ville.
Détente et bien-être à quelques minutes aux Thermes de Strassen.

Nous contacter

legend fieldset

Contrôle de sécurité, cliquez sur la montre :

Projet développé par :

Actualités

Valorisez pleinement votre bien avec Heritage

Aperçu

Prime Properties est un fonds d’investissement immobilier indépendant basé au Luxembourg, actif dans sept pays. Au cours des 20 dernières années, il a développé plus de 2 milliards d’euros d’actifs immobiliers et gère actuellement 822 millions d’euros d’actifs.

Le fonds se concentre sur une gestion active à long terme d’actifs européens dans les secteurs du logement étudiant, du résidentiel, des résidences seniors et de l’habitat avec services. Il intervient sur l’ensemble de la chaîne de valeur immobilière, depuis l’acquisition foncière jusqu’à la gestion des actifs.

Projet de référence

En partenariat avec Thomas & Piron, Prime Properties a développé Les Jardins de Luxembourg, un projet mixte de 110 000 m² situé à Merl, Luxembourg-Ville. Le développement comprend 615 appartements, 9 000 m² de bureaux et 8 600 m² de surfaces commerciales, entièrement vendus. D’une valeur de marché de 800 millions d’euros, le projet s’étend de 2007 à 2024 et a obtenu la certification BREEAM en 2011.

Aperçu

Avec plus de 50 ans d’expérience, Thomas & Piron est un groupe de construction et de promotion immobilière de premier plan, ayant livré environ 1 500 unités en 2024. Basée en Belgique et solidement implantée au Luxembourg, l’entreprise est active dans les domaines de la construction, du développement immobilier et du génie civil, et propose des services incluant la rénovation, la restauration et la gestion de projets, tant pour les secteurs privé que public.

Projet de référence

En partenariat avec Immobel, le plus grand promoteur coté en bourse en Belgique, Thomas & Piron développe Universalis Park, un important projet mixte situé sur le campus ULB/VUB de La Plaine à Bruxelles. Le projet combine appartements, logements étudiants et services de proximité au sein d’un environnement urbain verdoyant. Une seconde phase d’environ 60 000 m² est prévue pour 2028, afin d’élargir l’offre résidentielle et les équipements communautaires du projet.

Découvrez notre deuxième site : Gaaschtbierg

Le second lotissement – Gaaschtbierg – d’une superficie de 33 000 m2, constitue l’un des développement les plus significatifs de Strassen. Il se distingue par sa densité optimisée, une présence végétale généreuse et une articulation subtile entre habitat, services et espaces naturels.